Teatro Bellas Artes de Bogotá.
Nueva Sala de 1000 espectadores con un alto nivel de equipamiento,
construida por CAFAM en la zona norte inaugurada a comienzos del 2008

 

Temática:
Proyecto Escenotécnico y arquitectura teatral.

Descripción:
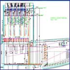
Cuenta con 38 sistemas de suspensión motorizados con control inteligente por software.
Sistema de parrillas y puentes de maniobras.
Maquinaria escenotécnica y sistemas auxiliares de montaje.
Sistemas de iluminación escénica; audio y video.
Plataformas para foso de orquesta y cámara de concierto.