Eastman Theater –Rochester; New York
Estados Unidos- obra 2004

 

Temática:
Acoustic Shell System

Descripción:
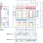
Realización de ingeniería de proyecto de la cámara de concierto
para acondicionamiento acústico con plafond de paneles de
múltiple ángulo de trabajo. Accionamiento electromecánico por
software Vortek” para suspensión y movimientos horizontales.
El proyecto comprende la ingeniería constructiva estructural y
del diseño decorativo y sus ornamentos.